Chelsea Duplex PH

Luxe finishes and fabrics were layered with existing, vintage, and new furnishings to create a home aligned with the client’s aesthetic.

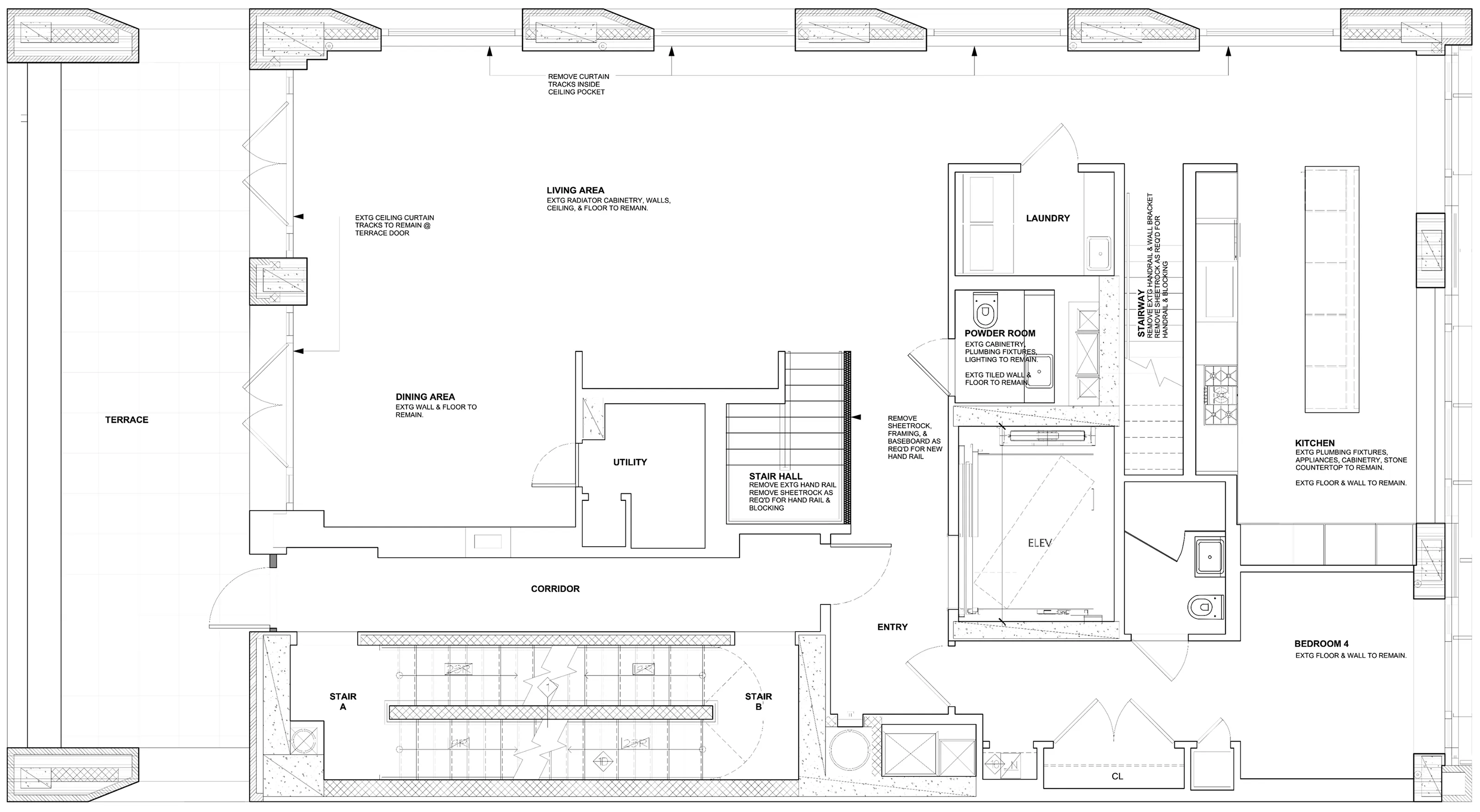
Before
After

“Michael’s design elevated our home to a standout asset, helping us achieve an off-market sale at 20% over list price. Our investment in his vision was well rewarded” - Arthur M.

arrow