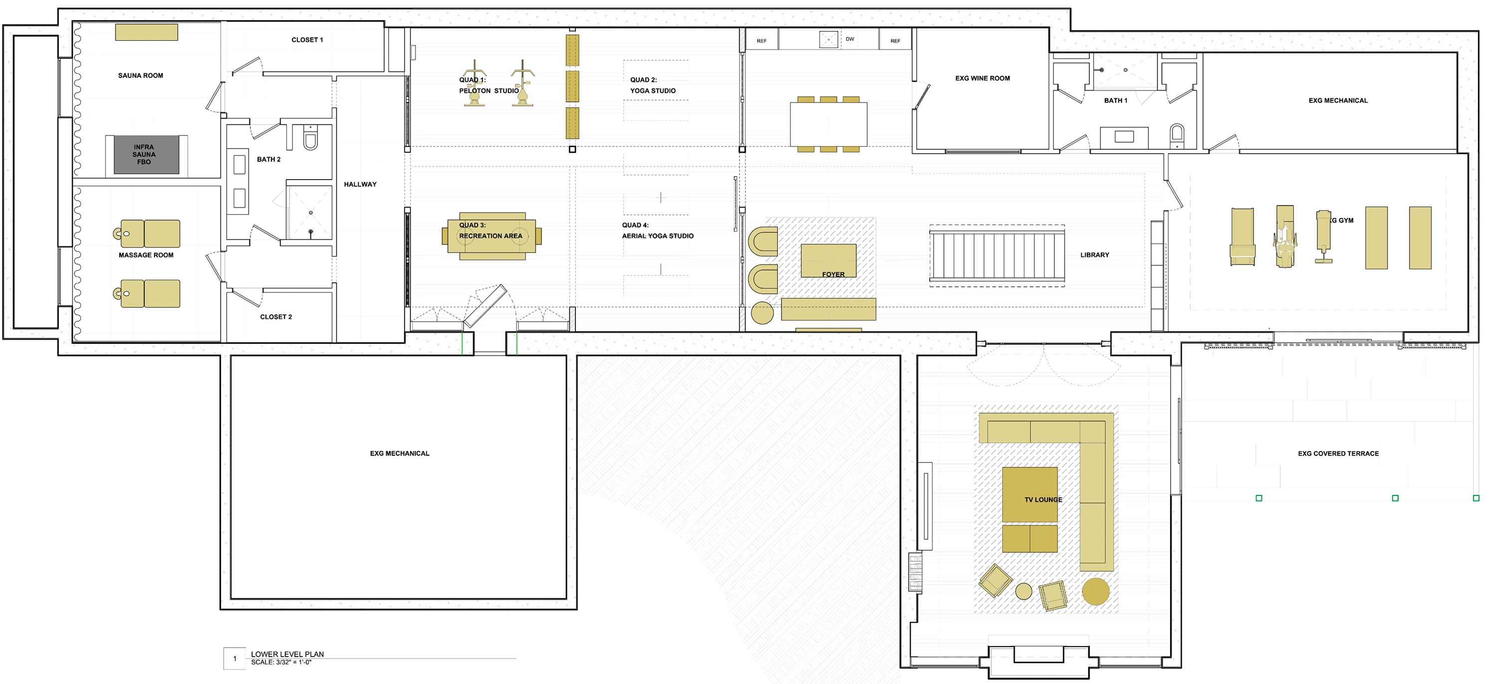
East Hampton Home Spa

Workout equipment and a sauna were integrated with soft seating and calming decor, creating a space that is equally inviting and utilitarian.

Before
After

“As both an insightful interior designer and a savvy manager, Michael significantly enhanced our home while protecting our budget at every turn” - Diana R.

arrow